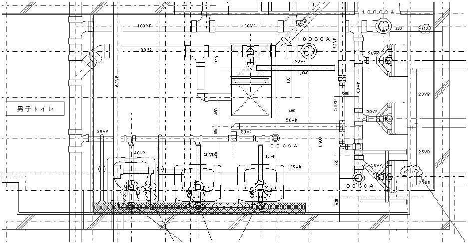
トイレ施工図 s=1/20 平面図