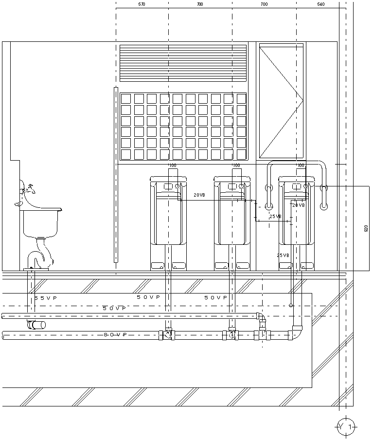
トイレ施工図 s=1/20 断面図