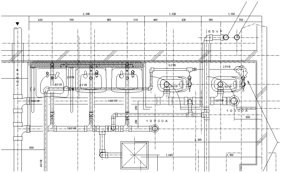
機械設備平面詳細図 S=1/20