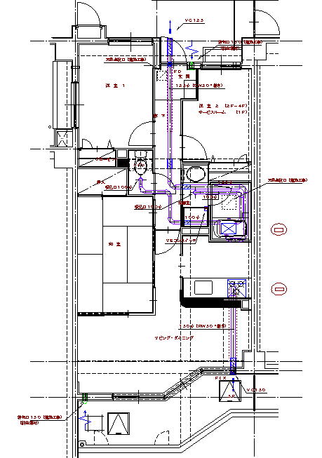
マンションDタイプ換気詳細図 S=1/50
ダウンロード